Point

長く快適に住む、これからを見据えた住まい🏠

  • 子供が巣立ったその先も、将来も、不満なく、気持ちよく住める間取り設計となっています💭
  • 1階には、主寝室を設けているので、将来は平屋のように1階で生活を完結させることができます✨
  • 2階は、お子さまの成長に合わせて使えるほか、将来は趣味部屋や書斎としても活躍するため長く愛用することができます📖
  • (※外観写真、内観写真は実物と異なる場合がございます。)

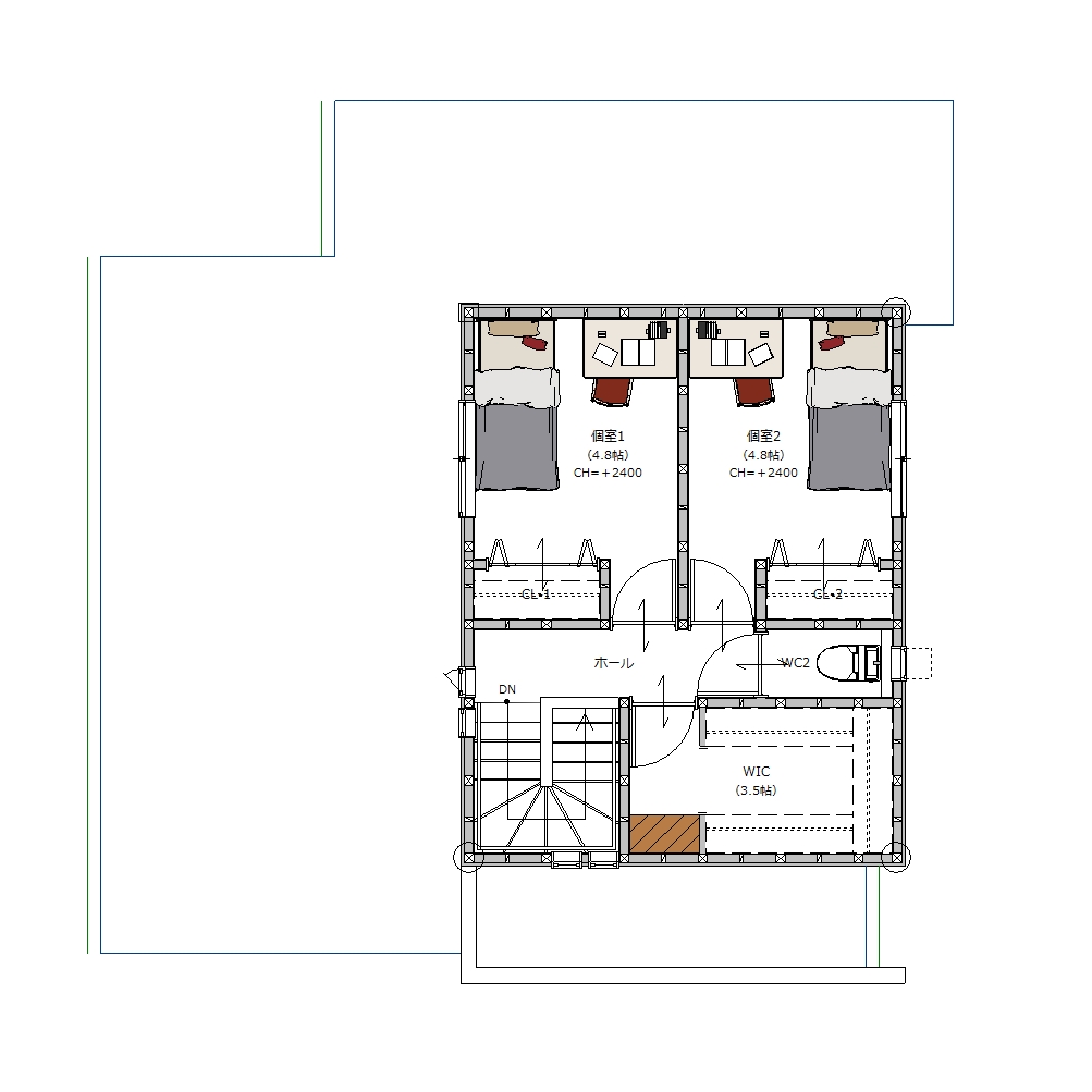
間取り図

設備

  • エアコン完備 エアコン完備
  • 全室LED照明 全室LED照明
  • 宅配ボックス 宅配ボックス
  • 浴室乾燥機 浴室乾燥機
  • 食器洗い乾燥機 食器洗い乾燥機
  • スマートロック スマートロック

仕様

  • ✅ ZEH基準適合住宅

    太陽光発電システム搭載。夏は涼しく、冬は暖かい、一年を通して快適な住環境です。

  • 🏠耐震等級3相当

    “なんとなく丈夫”ではなく、“計算された安心”。 「許容応力度計算」が支える、本物の耐震性能です。

  • 🌱防草シート+砂利敷き

    「防犯」「雑草の抑制」「泥はね防止」に特化。美しい街並みを常に維持します。

  • ✨庭園灯+人感防犯灯

    夜でも明るく、死角や防犯性に配慮した「安心」の街並みを実現します。

  • 🎁カーテン・照明(全室)、エアコン(2台)を標準装備

    ご入居時の手間と費用負担を抑えて、スムーズに「新生活」をスタートできます。

  • 🫧ガス衣類乾燥機「乾太くん」搭載

    天候に左右されず、自宅がコインランドリーのように使える快適な洗濯環境を実現。

  • 🚙駐車スペース3台確保

    複数台所有や来客にも対応できるゆとりある設計です。

  • 🛁水回りはパナソニック仕様

    スキマが少なく汚れがたまりにくい仕様で、お掃除もラクラク。長く清潔感を保ちます。

マップ

ロケーション

JR新山口駅

JR新山口駅

(約890m)徒歩約12分

コスモス小郡下郷店

コスモス小郡下郷店

(約80m)徒歩約1分

小郡南小学校

小郡南小学校

(約1.4km)徒歩約18分

小郡中学校

小郡中学校

(約2.2km)徒歩約28分

小郡保育園

小郡保育園

(約1.7km)車で約5分

小郡幼稚園

小郡幼稚園

(約1.6km)車で約4分

小郡幼稚園

小郡幼稚園

(約1.6km)車で約4分

ビッグ小郡店

ビッグ小郡店

(約1.6km)車で約4分

イオンタウン小郡

イオンタウン小郡

(約1.5km)徒歩約19分

メディカルパーク小郡

メディカルパーク小郡

(約1.3km)徒歩約17分

小郡第一総合病院

小郡第一総合病院

(約2.0km)徒歩約25分

花園公園

花園公園

(約800m)徒歩約10分

物件概要

販売価格

4,850万円(税込)

  • 所在地

    山口市小郡下郷字戸樋34131番51

  • 間取り

    3LDK+WIC+LR+SIC+PT(ウォークインクローゼット+ランドリールーム+シューズインクローゼット+パントリー)

  • 敷地面積

    245.38㎡(74.22坪)

  • 建物面積

    99.37㎡(30.05坪)

  • 学校区

    小郡南小学校、小郡中学校

  • 交通

    JR新山口駅 890m 徒歩12分

  • 総区画

    17区画

  • 販売区画数

    12区画

  • 都市計画

    非線引き区域

  • 用途地域

    準工業地域

  • 建ぺい率

    70%

  • 容積率

    200%

  • 法令上の制限

    景観法、法第22条地域

  • 入居予定時期

    R8.8月上旬

  • 建築確認番号

    R7建確建住セ下第0280号

  • 建物完成時期/予定時期

    R8.7月上旬

  • 現況

    更地

  • 構造

    木造2階建

  • 接道状況

    幅員6mに27.963m接する

  • 取引様態

    売主

  • 開発面積

    5.615.93㎡

  • 販売予定時期

    販売中

  • 土地権利

    所有権

  • 地目

    宅地

  • 備考

    上下水道・電気・都市ガス

最終更新日:2026.05.22

同エリアのおすすめ物件

新山口駅西Ⅲ 1号地

New
新山口駅西Ⅲ 1号地

販売価格

4,480 万円(税込)

建物面積

93.16 ㎡(28.18坪)

土地面積

270.96 ㎡(81.96坪)

新山口駅西Ⅲ 2号地

New
新山口駅西Ⅲ 2号地

販売価格

4,650 万円(税込)

建物面積

92.67㎡(28.03坪)

土地面積

263.95㎡(79.84坪)