Point

家族みんなのことを考えたおうち💭

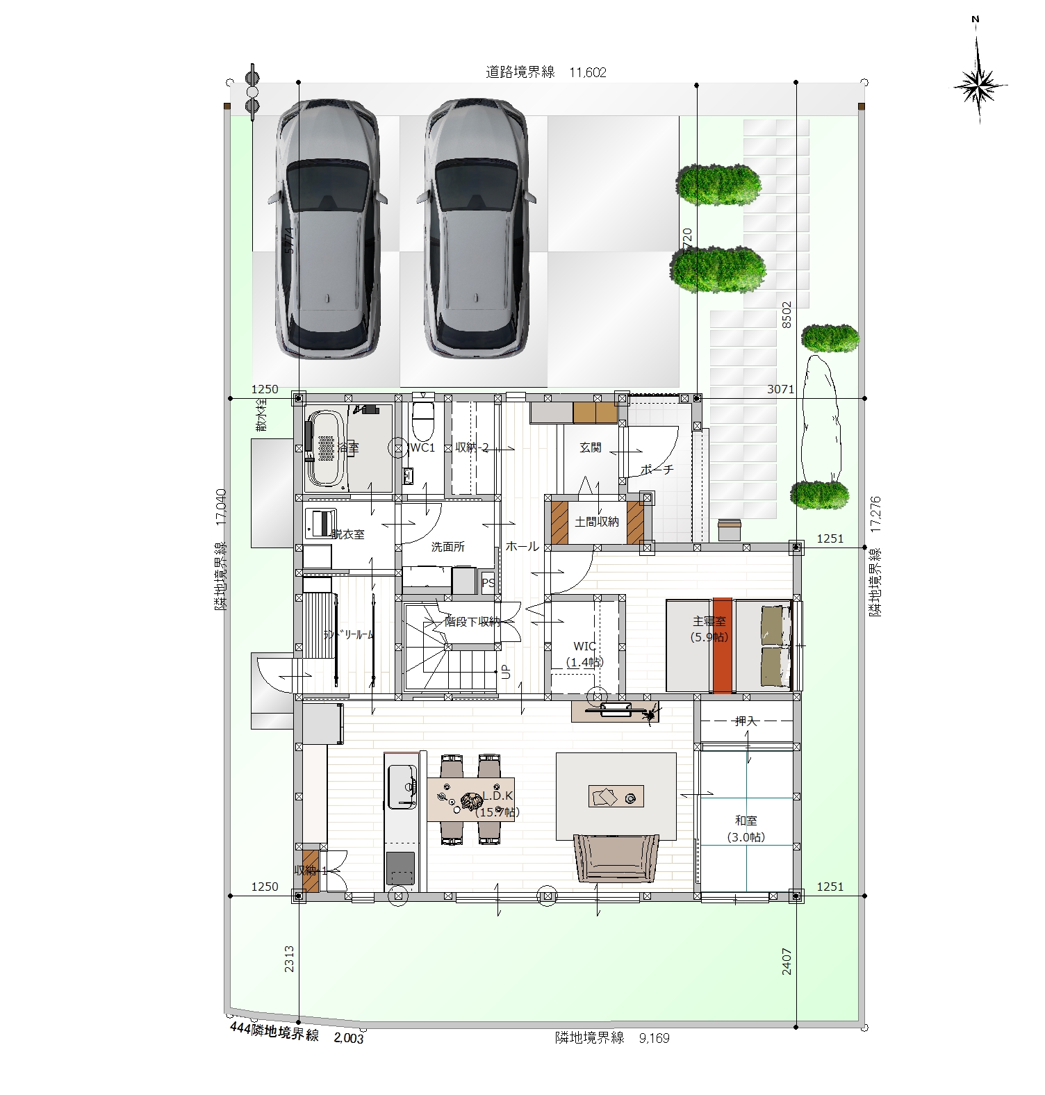
  • 一階には、小さな和室スペースがあるため、お子さんを目の届く範囲で遊ばせることができます!
  • キッチンから一直線につながった家事動線で、日々の家事の負担を軽減◎

間取り図

設備

  • エアコン完備 エアコン完備
  • オール電化 オール電化
  • 太陽光発電 太陽光発電
  • 全室LED照明 全室LED照明
  • 宅配ボックス 宅配ボックス
  • 浴室乾燥機 浴室乾燥機
  • 食器洗い乾燥機 食器洗い乾燥機
  • スマートロック スマートロック

仕様

  • ✅ ZEH基準の高断熱・省エネ住宅

    環境にも家計にもやさしい、次世代基準の住まいです

  • 🌞4.02kw太陽光発電標準装備

    節電から発電の暮らしへ💡

  • ✨水回りはクリナップ仕様

    一体型シンク&ステンレス素材✨

  • 🏠耐震等級3相当

    耐震1(標準)の1.5倍の耐震性を持つ最高レベル

  • 🏠断熱等性能等級5

    Low-E複層ガラス、アルミ樹脂複合サッシ

  • 🌿統一感外構

    洗い出し仕上げの駐車場で高級感UP ・足元ライト&植栽付きで夜も美しく演出

  • 🌱防草シート

    お庭のお手入れもラクラク

  • 🎁 カーテン・照明・省エネエアコン2台を標準装備!

    購入後すぐに快適な新生活がスタートできます

マップ

ロケーション

防府市立松崎小学校

防府市立松崎小学校

(約400m)/徒歩約5分

防府市立佐波中学校

防府市立佐波中学校

(約1.3km)/徒歩約17分

松崎幼稚園

松崎幼稚園

(約260m)/徒歩約4分

防府駅

防府駅

(約1.2km)/徒歩約15分

ウォンツ防府松崎店

ウォンツ防府松崎店

(約250m)/徒歩約4分

松村内科

松村内科

(約300m)/徒歩約4分

イオン防府店

イオン防府店

(約1.4km)/車約4分

ファミリーマート防府美和店

ファミリーマート防府美和店

(約400m)/徒歩約5分

物件概要

販売価格

4,260万円(税込)

  • 所在地

    山口県防府市南松崎町1605番7

  • 間取り

    3LDK+LR+WIC+PT+SIC

  • 敷地面積

    200.27㎡(60.58坪)

  • 建物面積

    101.01㎡(30.55坪)

  • 学校区

    松崎小学校、佐波中学校

  • 交通

    「西国衙」バス停 徒歩10分

  • 総区画

    11区画(建売4区画、建築条件付き宅地9区画)

  • 販売区画数

    6区画

  • 都市計画

    市街化区域

  • 用途地域

    第一種住居地域

  • 建ぺい率

    60%

  • 容積率

    200%

  • 法令上の制限

    法第22条区域

  • 入居予定時期

    R8.5月中旬

  • 建築確認番号

    R7建確建住セ下第0251号

  • 建物完成時期/予定時期

    R8.4月下旬

  • 現況

    建築中

  • 構造

    木造2階建

  • 接道状況

    接道5mに約11.602m接する

  • 取引様態

    売主

  • 開発面積

    2,715.89㎡

  • 販売予定時期

    販売中

  • 土地権利

    所有権

  • 地目

    宅地

  • 備考

    電気・都市ガス・上下水道

最終更新日:2026.02.01

同エリアのおすすめ物件

南松崎Ⅲ 3号地

New
南松崎Ⅲ 3号地

販売価格

4,310 万円(税込)

建物面積

91.91㎡(27.80坪)

土地面積

216.65㎡(65.53坪)

南松崎Ⅲ 8号地

南松崎Ⅲ 8号地

販売価格

4,380 万円(税込)

建物面積

89.04 ㎡(26.93坪)

土地面積

227.39 ㎡(68.78坪)