Point

平屋と2階建の良いところどり⁉

  • 一階には寝室、二階に子供部屋があるので、お子様が大きくなられたあとは平屋のような生活が可能✨
  • 生活に必要なスーパーなどが近くにそろっているため、暮らしやすい立地となっています🏠

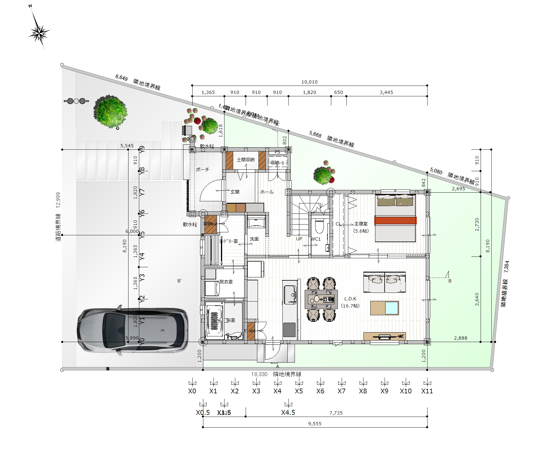
間取り図

設備

  • エアコン完備 エアコン完備
  • オール電化 オール電化
  • 太陽光発電 太陽光発電
  • 全室LED照明 全室LED照明
  • 宅配ボックス 宅配ボックス
  • 浴室乾燥機 浴室乾燥機
  • 食器洗い乾燥機 食器洗い乾燥機
  • スマートロック スマートロック

仕様

  • ✅ ZEH基準の高断熱・省エネ住宅

    環境にも家計にもやさしい、次世代基準の住まいです

  • 🌞4.02kw太陽光発電標準装備

    節電から発電の暮らしへ💡

  • ✨水回りはタカラスタンダード仕様

    ホーローパネルでお掃除楽ちん

  • 🏠耐震等級3相当

    耐震1(標準)の1.5倍の耐震性を持つ最高レベル

  • 🏠断熱等性能等級5

    Low-E複層ガラス、アルミ樹脂複合サッシ

  • 🌿統一感外構

    洗い出し仕上げの駐車場でメンテナンスが楽々・足元ライト&植栽付きで夜も美しく演出

  • 🌱防草シート

    お庭のお手入れもラクラク

  • 🎁 全室カーテン・照明、省エネエアコン2台を標準装備!

    購入後すぐに快適な新生活がスタートできます

マップ

ロケーション

宇部市立恩田小学校

宇部市立恩田小学校

徒歩約15分(1.1km)

宇部市立常盤中学校

宇部市立常盤中学校

徒歩約31分(2.3km)

宇部こぐま保育園

宇部こぐま保育園

徒歩約7分(500m)

ウォンツ宇部岬店

ウォンツ宇部岬店

徒歩約9分(600m)

宇部協立病院

宇部協立病院

徒歩約6分(400m)

宇部空港

宇部空港

車約4分(900m)

五十目山児童公園

五十目山児童公園

徒歩約3分(210m)

フジグラン宇部

フジグラン宇部

車約4分(1.5km)

物件概要

販売価格

3,990万円(税込)

  • 所在地

    山口県宇部市五十目山町1759番9

  • 間取り

    3LDK+SIC+LR+FC

  • 敷地面積

    191.67㎡57.98坪)

  • 建物面積

    97.29㎡(29.43坪)

  • 学校区

    恩田小学校・常盤中学校

  • 交通

    宇部岬駅 徒歩約8分(600m)

  • 総区画

    8区画

  • 販売区画数

    5区画

  • 都市計画

    非線引き都市計画区域

  • 用途地域

    第二種中高層住居専用地域

  • 建ぺい率

    60%

  • 容積率

    200%

  • 法令上の制限

    法第22条区域

  • 入居予定時期

    要相談

  • 建築確認番号

    R7建確建住セ下第0182号(R7.10.22)

  • 建物完成時期/予定時期

    R8.2月中旬

  • 現況

    建築中

  • 構造

    木造2階建

  • 接道状況

    幅員6mに12.999m接する

  • 取引様態

    売主

  • 開発面積

    1.491.43㎡

  • 販売予定時期

    販売中

  • 土地権利

    所有権

  • 地目

    宅地

  • 備考

    上下水道・電気

最終更新日:2026.02.01

同エリアのおすすめ物件

宇部神原Ⅱ 1号地

宇部神原Ⅱ 1号地

販売価格

4,250 万円(税込)

建物面積

112.61㎡(34.06坪)

土地面積

248.93㎡(75.30坪)

宇部神原Ⅱ 3号地

宇部神原Ⅱ 3号地

販売価格

4,290 万円(税込)

建物面積

107.64㎡(32.56坪)

土地面積

250.48㎡(75.77坪)

宇部恩田6号地

New
宇部恩田6号地

販売価格

4,060 万円(税込)

建物面積

107.65㎡(32.56坪)

土地面積

199.84㎡(60.45坪)