Point

価格改定!3,880万円→3,220万円!

  • (旧価格公開日2024年11月11日_改定日2025年11月2日)
  • お求めやすい価格で売り出し中!このチャンスをお見逃しなく!
  • 家族の日々を支える抜群のロケーション

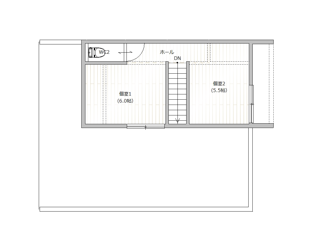
間取り図

設備

  • エアコン完備 エアコン完備
  • オール電化 オール電化
  • 全室LED照明 全室LED照明
  • 宅配ボックス 宅配ボックス
  • 浴室乾燥機 浴室乾燥機
  • 食器洗い乾燥機 食器洗い乾燥機

仕様

  • ZEH仕様

    エコ&快適な暮らしを実現

  • 耐震等級3相当

    地震に強い

  • 長期優良住宅水準

    安心・快適◎

  • 駐車場3台

    ゆとりの駐車3台OK

  • 全室オーダーカーテン

    全室にオーダーカーテンを標準装備

  • 電気自動車用コンセント

    ご自宅で気軽にEVの充電

  • 家事ラク回遊動線

    ストレスフリーな暮らし

マップ

ロケーション

高千帆小学校

高千帆小学校

(約1km)徒歩約14分

高千帆小百合幼稚園

高千帆小百合幼稚園

(約1km)徒歩約14分

高千帆中学校

高千帆中学校

(約1.2km)徒歩約18分

マックスバリュ小野田店

マックスバリュ小野田店

(約2.4km)車約7分

 ジョイフル 小野田店

ジョイフル 小野田店

(約750m)徒歩約10分

生協小野田診療所

生協小野田診療所

(約700m)徒歩約10分

ドラッグストアコスモス 東高泊店

ドラッグストアコスモス 東高泊店

(約500m)徒歩約7分

小野田駅

小野田駅

(約1.2km)徒歩約17分

物件概要

販売価格

3,220万円(税込)

  • 所在地

    山陽小野田市大字東高泊字高須1350-22

  • 間取り

    3LDK

  • 敷地面積

    246.00 ㎡(74.41坪)

  • 建物面積

    92.73 ㎡(28.05坪)

  • 学校区

    高千帆小学校 、高千帆中学校

  • 交通

    「小野田駅」徒歩16分

  • 総区画

    2区画

  • 販売区画数

    1区画

  • 都市計画

    市街化区域

  • 用途地域

    第一種住居地域

  • 建ぺい率

    60%

  • 容積率

    200%

  • 法令上の制限

    法第22条区域

  • 入居予定時期

    即入居可

  • 建築確認番号

    R6建確建住セ下第0242号

  • 建物完成時期/予定時期

    2025年5月12日

  • 現況

    建築済

  • 構造

    木造2階建

  • 接道状況

    幅員6mに29.830m接する

  • 取引様態

    売主

  • 開発面積

    2006.07㎡

  • 販売予定時期

    販売中

  • 土地権利

    所有権

  • 地目

    宅地

  • 備考

    -

最終更新日:2026.03.13

同エリアのおすすめ物件

同エリアのおすすめ物件はありません。